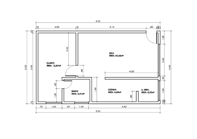
Exercícios - Baseando-se nos conhecimentos adquiridos em sala, reproduza os desenhos abaixo usando a ferramenta CAD (não é necessario redesenhar as vistas isométircas e cavaleiras, nem as cotas)
A)
B)
C)
D)
Duvidas, deixe sua mensagem aqui,,,





Nenhum comentário:
Postar um comentário